Renovierte 3-Zimmer-ETW mit Süd-Loggia und Ausblick zum Kanal

Eckdaten

  • Art Etagenwohnung
  • Lage 91056 Erlangen
  • Kaufpreis 277.500,00
  • Hausgeld 366,00
  • Wohnfläche ca. 80
  • Zimmer 3
  • Baujahr 1976
  • Etagenzahl 19
  • Etage 9
  • Heizungsart Zentralheizung
  • Einbauküche ja
  • Anzahl Balkone 2
  • Stellplatztyp Aussenstellplatz
  • Stellplatzanzahl 1
  • Stellplatzkaufpreis 6.000,00
  • Vermietet nein
  • Bezugstermin 01.01.2025
  • Bodenbelag Vinyl Laminat Fliesen Teppichboden
  • Ausstattung des Bades Badewanne Fenster
  • Zustand Modernisiert
  • Immobilien-ID 6829
  • Provision 2,38 % inkl. MwSt.

Immobilie

Die sehr gepflegte Wohnung befindet sich in der 9. Etage eines ebenfalls sehr gepflegten Hochhauses, direkt am Main-Donau-Kanal in Erlangen-Büchenbach. Die Wohnung lässt sich bequem über zwei Aufzüge erreichen.

Das Gebäude selbst wurde 2005 aufwendig mit einer neuen Fassadendämmung versehen. 2011 wurden neue Fenster mit Rollos eingesetzt.

Das geschmackvolle Badezimmer wurde 2009 renoviert, die Einbauküche wurde 2011 eingebaut.
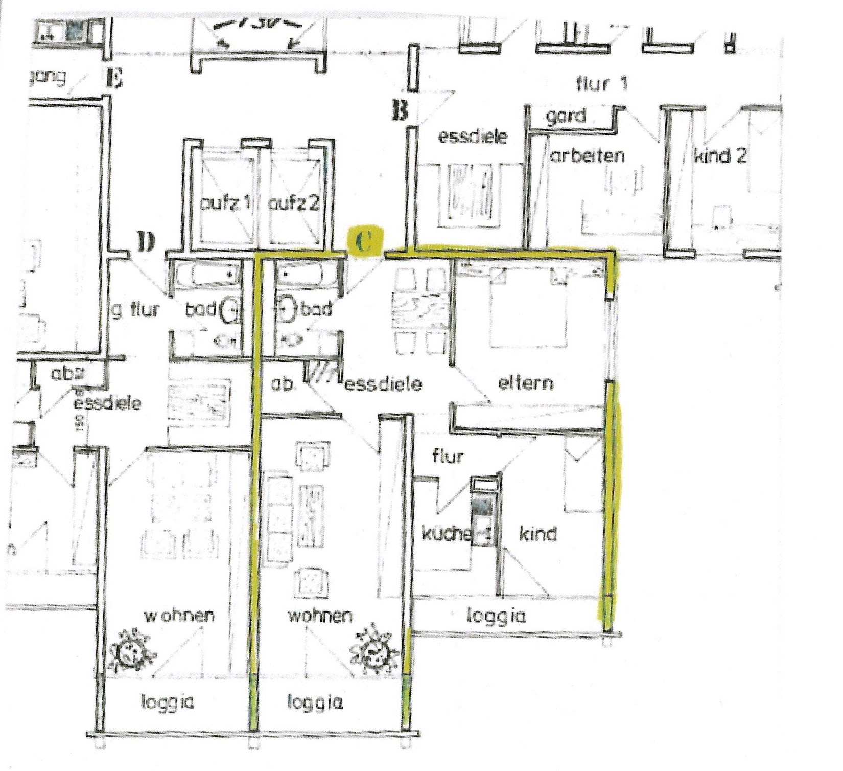
Die Wohnung hat eine Wohnfläche von 80,29 m² mit 3 Zimmern: ein großes Wohnzimmer, ein Schlafzimmer und ein Kinder-/Gästezimmer. Vom Wohnzimmer aus betritt man die zum Süden hin ausgerichtete Loggia mit wunderbarem Blick auf den Main-Donau-Kanal. Für angenehmen Sommergenuss ist eine Markise angebracht. Vom Gästezimmer aus lässt sich ebenfalls eine kleine, schmale Loggia begehen. Der Eingangsbereich ist sehr großzügig bemessen und bietet viele Stauraummöglichkeiten.

Zur Wohnung gehören ein Kfz-Außenstellplatz und ein Kellerabteil. Zudem verfügt das Gebäude über einen Fahrradkeller mit Außenzugang.

Das monatliche Hausgeld beträgt aktuell 366 € (inkl. 66 € Instandhaltungsrücklage).
Die Wohnung ist nicht vermietet und steht ab 01.01.2025 zur Verfügung.

Lage

Die Lage am "Kanal" ist ein idealer Ausgangspunkt, da er städtisches Wohnen mit grüner Umgebung für diverse Sport- und Freizeitaktivitäten vereint. Die umliegende Infrastruktur ist hervorragend und bietet Familien, Paaren sowie Singles die Rundum-Versorgung für das tägliche Leben. Selbst Schulen, Kindergärten und medizinische Einrichtungen sind in kurzer Distanz erreichbar.

Eine gute Anbindung an das überregionale Straßennetz und den öffentlichen Nahverkehr erleichtert Pendlern die Erreichbarkeit der Nachbarstädte Fürth, Nürnberg sowie Forchheim oder Bamberg. In die Innenstadt Erlangens sowie zum Hauptbahnhof benötigen Sie lediglich 12 Minuten und können dafür sogar das Fahrrad nutzen. Die nächste Bushaltestelle befindet sich quasi vor der Haustür.

Ausstattung

Alle Vorzüge der Wohnung auf einen Blick:

– hochwertige Einbauküche im Kaufpreis enthalten (neue Spülmaschine 2023)
– modernisiertes Badezimmer mit Badewanne, Waschbecken, WC und Waschmaschinenanschluss
– Laminatboden im Gästezimmer (neu 2020)
– Vinylboden im Flur, Schlafzimmer und in der Küche (neu 2013)
– Teppich im Wohnzimmer (neu 2018)
– großzügiger Kleiderschrank im Schlafzimmer (im Kaufpreis enthalten)
– Loggia mit "Südausrichtung" und Markise (Zugang vom Wohnzimmer)
– 2. kleine Loggia (Zugang vom Kinder-/Gästezimmer)
– 1 Außenstellplatz
– Kellerabteil inklusive
– 2 Aufzüge

Keller Aufzug Vermietet Balkon vorhanden Einbauküche Rollladen vorhanden

Sonstiges

Sind Sie Immobilieneigentümer oder haben Sie Freunde, Bekannte oder Nachbarn, die Ihre Immobilie erfolgreich vermieten oder verkaufen wollen?

Wir suchen laufend hochwertige Mietwohnungen, Einfamilienhäuser, Doppelhaushälften sowie Reihenhäuser im Stadtgebiet und Nahbereich von Erlangen, Fürth und Nürnberg zur Vermietung sowie zum Verkauf an zahlreiche vorgemerkte Kunden und Interessenten. Wir übernehmen für Sie die komplette Abwicklung bis hin zum unterschriftsreifen Miet- bzw. Kaufvertrag.

Nehmen Sie doch einfach Kontakt mit uns auf, unser Team freut sich auf Ihren Anruf oder Ihre E-Mail!

Energieausweisangaben

A+
A
B
C
D
E
F
G
H
  • Enerigeausweistyp Verbrauchsausweis
  • Energiekennwert 70 KWh(m²*a)
  • Energieeffizienzklasse B
  • Energieausweis erstellt am 17.08.2018
  • Energieausweis gültig bis 16.08.2028
  • Heizungsart Zentralheizung

Grundrisse

Wie können wir Ihnen behilflich sein?

Herzlichen Dank für Ihre Anfrage.

Wir werden diese so schnell wie möglich bearbeiten.

Wie können wir Ihnen behilflich sein?
* Pflichtfeld

Durch die weitere Nutzung der Seite stimmen Sie der Verwendung von Cookies zu. Weitere Informationen

Die Cookie-Einstellungen auf dieser Website sind auf "Cookies zulassen" eingestellt, um das beste Surferlebnis zu ermöglichen. Wenn du diese Website ohne Änderung der Cookie-Einstellungen verwendest oder auf "Akzeptieren" klickst, erklärst du sich damit einverstanden.

Schließen